T. MICHAEL HADLEY & ASSOCIATES
architecture & interior design - sedona, arizona
architecture & interior design




dr. allen doezie medical office - ladera ranch, ca
offering creative design and personal service since 1975
2014  T. MICHAEL HADLEY & ASSOCIATES  -  ALL RIGHTS RESERVED  -  COPYRIGHT/PRIVACY
see floor plan
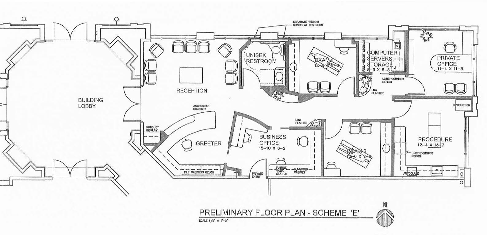
This 1398 SF medical office for Dr. Allen Doezie was designed and built in 2009 in Ladera Ranch, CA.  Dr. Doezie is a plastic surgeon in Orange County, CA.

Dr. Doezie specifically wanted an office that was calming and professional, and without the standard straight line hallway typically seen in small offices.   Michael Hadley designed the space with a softly curving hallway (see floor plan) that created interest and added a feminine element.  The curved walls are reflected in a variety of curved ceiling layers at varying heights.  Painted drywall layers were used as design features, along with a coffered ceiling in the reception room. 

The office features a spacious reception room, space for a greeter within the reception area, 2 exam rooms, a minor procedure room, the doctor's private consultation office, business office space that is concealed from patient view, and a patient restroom.  Since its completion, the office has received very positive comments from patients, who appreciate the non-medical look.
commercial
to page 1 of dr. doezie gallery
serving arizona, california, and new mexico