T. MICHAEL HADLEY & ASSOCIATES
architecture & interior design - sedona, arizona




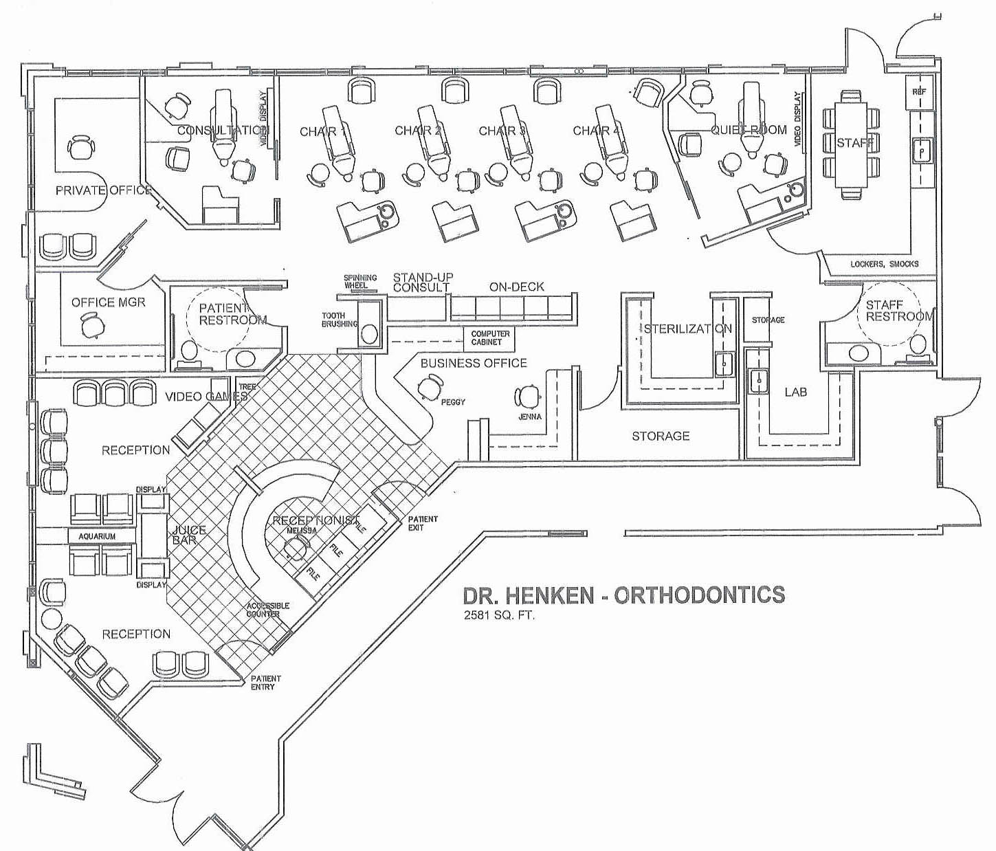
dr. ed henken dental office, san clemente, ca
offering creative design and personal service since 1975
2014  T. MICHAEL HADLEY & ASSOCIATES  -  ALL RIGHTS RESERVED  -  COPYRIGHT/PRIVACY
commercial
back to dental/medical floor plan gallery
This project is a large 2581 SF orthodontic office for Dr. Ed Henken in San Clemente, CA.  The office has a spacious treatment bay and 2 private combination treatment/exam rooms, a curved central reception and check-out desk, private office, office manager's room, and a large staff area with private restroom.  The office features a number of custom back-lit etched glass art pieces with ocean and beach themes.