T. MICHAEL HADLEY & ASSOCIATES
architecture & interior design - sedona, arizona




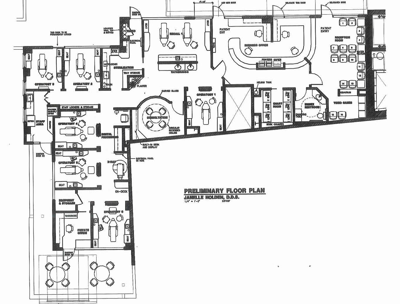
dr. janelle holden dental office, manhattan beach, ca
offering creative design and personal service since 1975
2014  T. MICHAEL HADLEY & ASSOCIATES  -  ALL RIGHTS RESERVED  -  COPYRIGHT/PRIVACY
commercial
back to dental/medical floor plan gallery
Located in a commercial up-scale mall in downtown Manhattan Beach, CA, this pediatric dental office for Dr. Janelle Holden was designed to accommodate a busy practice while giving her patients and parents an interesting and exciting visit.  The office features video games, a kid-cave, animal themed wall murals, and various aquariums throughout.